Industrial Plant Expansion

Construction drawings for a manufacturing facility expansion with new infrastructure

Industrial Design Completed: March 2024 Brooklyn, NY
工业厂房扩建 - 设施概览

Project Overview

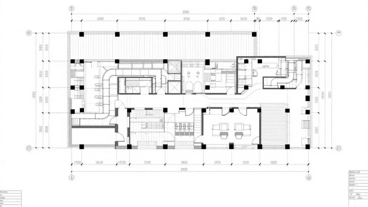
This project involved comprehensive construction drawings for a significant expansion of an existing manufacturing facility in Brooklyn, NY. The expansion added 15,000 square feet of production space along with updated infrastructure including new loading docks, utility connections, and employee facilities.

Key Features

Space Optimization

Efficient layout design maximizing production flow and storage capacity

Logistics Design

Enhanced loading dock design with improved traffic flow and safety features

Utility Upgrades

Complete electrical, plumbing, and HVAC system designs for expanded operations

Safety Compliance

Full compliance with OSHA and local safety regulations for industrial facilities

Our Services Provided

  • Existing conditions survey and documentation
  • Space planning and facility layout optimization
  • Structural design for new construction areas
  • Mechanical, electrical, and plumbing (MEP) system designs
  • Fire protection and life safety system designs
  • Coordination with specialized engineering consultants
  • Construction document preparation for bidding and permitting
  • Construction administration and site observation

Project Results

The project was completed on schedule and within budget. The detailed construction drawings allowed for accurate bidding and minimized change orders during construction. The facility expansion has enabled the client to increase production capacity by 40% while maintaining compliance with all regulatory requirements.

15,000 Square Feet Added
40% Capacity Increase
12 Weeks Design
4 New Loading Docks

Other Projects

Modern Residential Complex

Residential Design

Retail Space Renovation

Commercial Design

Have an Industrial Project?

Contact us for a free preliminary assessment of your manufacturing or industrial facility project.

Get Free Assessment